英国PDA
产品中心
>
您当前的位置:
产品中心
PDA进口隔断系统—Hermetic 55高强度钢制防火门窗
    发布时间: 2026-03-26 13:58    
PDA进口隔断系统—Hermetic 55高强度钢制防火门窗

PDA进口隔断系统—Hermetic 55高强度钢制防火门窗


1468227115510157.png


4922-1237.jpg


Hermetic 55高强度钢制防火门窗系统

Hermetic 55高强度钢制防火门窗隔断系统,型材采用多弯卡扣式设计,型材强度大大提高,适用于楼宇及商场入口门,同时可以根据建筑外幕墙风格改变玻璃位置,使整体幕墙与外围门窗达到共面或错位。

Hermetic 55玻璃防火窗


U)6DTS8JIH7P(JI6]MEF{68.png

XS1GJJ4FC)$8}[XC0ZHUXGL.png


Hermetic 55窗

平开窗:1200mm,高3000mm,可承重200KG

悬窗:宽2000mm,高1500mm,可承重150KG


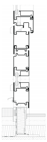
Detail:

技术节点1.png


Detail:

技术节点2.png


Hermetic 55玻璃防火门

1468230541297500.png


1468230561459823.jpg


Hermetic 55钢制防火门

平开门:宽1400mm,高3500mm,可承重250KG

地弹门:宽1400mm,高3500mm,可承重250KG

中轴门:宽1600mm,高3500mm,可承重250KG


Detail:

55N门技术节点.png


Detail:

55N技术节点2.png


Detail:

技术节点3.png


MLEEBZ$9(MIVH]}CGGZN6FB.png


联系我们
英国PDA上海分公司防火隔断墙、玻璃隔断生产商
电 话:021-61526106
传 真:021-61526189*608
邮 箱:steelpartition@eng-pda.com
地 址:上海市嘉定区金沙江西路568号Chaber大厦B栋8楼