英国PDA
产品中心
>
您当前的位置:
产品中心
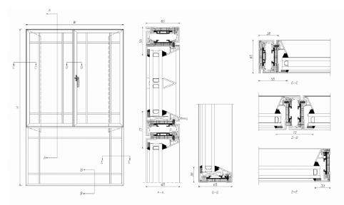
PDA进口纤细型钢制门窗系统—SLIM 65
    发布时间: 2026-03-26 14:00    
PDA进口纤细型钢制门窗系统—SLIM 65

PDA-SLIM65窄边框钢制门窗系统具有极窄的型材看面,这种追求极简的框架设计,可以最大程度地增加透光面积,减小视觉障碍,让“面”变成“线”,是一款纤细优雅、复古与现代兼具的门窗系统。

SLIM65.jpg


SLIM系列产品由冷弯钢型材+断热桥设计,双材质的结构结合可以剪断(或减少)热传递路径,以达到节能的目的,配合上多腔的节能玻璃,形成保温性能优异的系统,以满足严格的国家节能要求。


SLIM65-2.jpg


SLIM系列是非常全面灵活的系统,框架部分材质可以优质镀锌钢、耐腐蚀钢、优质黄铜等,以适合不同室内风格。也是目前国内少数能够兼顾五金槽口的厂家,可选配欧标五金,。其丰富的玻璃压线可配置12-42mm的玻璃表板。


SLIM65-3.jpg


联系我们
英国PDA上海分公司防火隔断墙、玻璃隔断生产商
电 话:021-61526106
传 真:021-61526189*608
邮 箱:steelpartition@eng-pda.com
地 址:上海市嘉定区金沙江西路568号Chaber大厦B栋8楼