PDA进口隔断系统—Hermetic 70防火隔热钢制门窗


70FP为全钢防火隔热型系统,可做防火玻璃门窗或防火隔断,通过A类EI3小时防火型式检验,满足甲级防火要求。
PDA是国内领先通过A类EI防火三小时全钢防火玻璃门的公司。
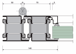
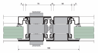
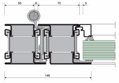
70FP全钢防火玻璃门节点

70FP全钢防火玻璃门节点

70FP全钢防火玻璃门节点

70FP全钢防火玻璃门节点

Hermetic 70防火玻璃门
平开门:宽1200mm,高3600mm 可承重250KG
地弹门:宽1400mm,高4000mm 可承重250KG
中轴门:宽1600mm,高4000mm 可承重300KG
Hermetic 70防火玻璃窗
平开窗:宽1200mm,高3000mm 可承重200KG
悬窗:宽2000mm,高1300mm 可承重150KG



Hermetic 70节能防火钢制门窗系统
在任何高档建筑上,钢制型材都可以发挥其独具的优势。因为只有钢制型材可以用过最窄的断面达到最大的跨度。除此之外,钢制型材相比其他材料更环保更经久耐用。Hermetic 70节能防火钢制隔断型材凭借其极具空间感的设计和纤细美观的型材外观从而使建筑物达到殿堂级的美感,同时创新的型材系统功能强大无可比拟。PDA公司专业的系统工程师也可以根据项目特点和客户要求进行专案设计。